- Wohneinheitenfläche
- Um 104 m²
- Grundstücksfläche
- Um 137 m²
- Baujahr
- Baujahr 1989
- Anzahl der Zimmer
- 5 Räume (4 Schlafzimmer)
Met vrij uitzicht over een plantsoen met speelveld, aan een autoluwe en zeer kindvriendelijke straat, is deze fraaie gezinswoning gelegen.
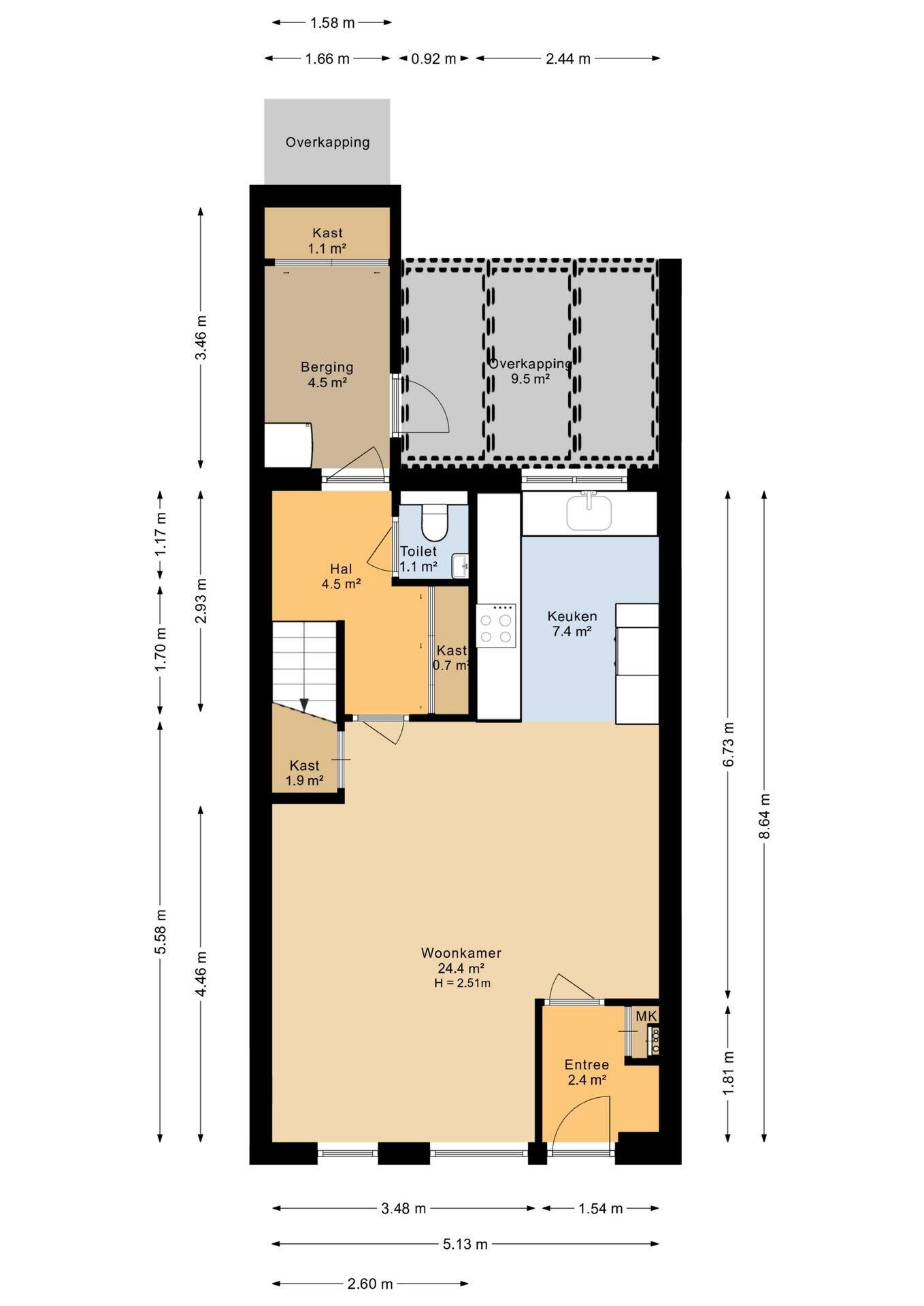
Woonoppervlakte: 104 m²
Inhoud: 385 m³
Perceeloppervlakte: 137 m²
________________________________________
BESCHREIBUNG
Deze in 1989 gebouwde tussenwoning is volledig geïsoleerd, deels voorzien van HR++glas, uitgerust met 9 zonnepanelen en beschikt over een nieuwe, moderne keuken. Op zolder is een dakkapel geplaatst, waar tevens een vierde slaapkamer is gerealiseerd. De zonnige tuin met overdekt veranda-terras is gunstig gelegen op het zuiden.
Meer zien? Bekijk de uitgebreide presentatie op: Kamille23.nl (kopieer en plak dit adres in uw browser).
Liever eerst digitaal rondkijken? Maak gebruik van de 360°-tour onder de foto’s en wandel virtueel door de woning — zo ontdekt u elke ruimte tot in detail!
________________________________________
UMGEBUNG
De woonwijk Roderveld III is ruim opgezet en voorzien van veel groen, speelveldjes en een gevarieerde bebouwing. Het levendige en gastvrije Drentse dorp Roden biedt een breed scala aan winkels, sportfaciliteiten en horecagelegenheden, allemaal omringd door prachtige natuur.
Steden als Groningen en Assen zijn binnen respectievelijk 15 en 20 minuten bereikbaar. Daarnaast rijdt er meerdere keren per uur een bus richting Groningen — ideaal voor woon-werkverkeer.
________________________________________
Erdgeschoss:
Entree, woonkamer met open keuken (samen ca. 32 m²), tweede hal met toilet, bergruimte en trapopgang, bijkeuken/berging met achterdeur die uitkomt onder de aluminium veranda.
1. Stockwerk:
Overloop, drie slaapkamers van ca. 7 m², 8 m² en 12,5 m². Badkamer met ligbad/douchecombinatie, tweede toilet en wastafel.
2. Stockwerk:
Overloop met wasmachineaansluiting en een ruime vierde slaapkamer van ca. 11 m².
Schuur:
Aangebouwde stenen berging/bijkeuken.
Garten:
De besloten achtertuin met achterom is gunstig gelegen op het zuiden en beschikt over een overdekt terras waar u heerlijk beschut kunt zitten, evenals een fietsenberging.
________________________________________
BESONDERS
• Volledig geïsoleerd
• Gedeeltelijk HR++ glas
• Extra TONZON-vloerisolatie (dubbel geïsoleerd)
• Vloer vernieuwd in 2024
• 9 zonnepanelen
• Buitenom geschilderd in 2024
• Remeha HR-cv-ketel (bouwjaar 2022)
• Keuken volledig vernieuwd in 2023 met Quooker
Onze foto’s zijn gemaakt met een standaardlens (geen groothoek), zodat ze een realistische en eerlijke indruk van de ruimtes geven. Zo krijgt u een betrouwbaar beeld van de woning — precies zoals u deze tijdens een bezichtiging zult ervaren.
Wilt u nog beter inzicht? Bekijk dan de digitale rondleiding en ontdek de woning tot in detail, zodat u zich eenvoudig een goed beeld kunt vormen van de indeling en de ruimtes. Lees de volledige omschrijving
Übertrag
- Verhandlungspreis
- 330.000 € k.K.
- Status
- verfügbar
- Hinnehme
- Im Gespräch
Bau
- Gegenstandsart
- Eingefamilles Haus, Reihenhaus
- Bauart
- Existierende Bauwerke
- Baujahr
- 1989
- Dachart
- Dach First mit Schindeln bedeckt
Oberfläche und Inhalt
- Wohneinheitenfläche
- 104 m²
- Grundstücksfläche
- 137 m²
- Inhalt
- 385 m³
- Gebäudebezogene Freifläche
- 9 m²
Einteilung
- Anzahl der Zimmer
- 5 Räume (4 Schlafzimmer)
- Anzahl der Badezimmer
- 1 Bad und 1 getrenntes Toilettenzimmer
- Badezimmerausstattung
- Dampfbad, Toilette und Waschbecken
- Anzahl der Wohnetagen
- 3 Wohnetagen
- Maßnahmen
- Glasvezelkabel, mechanische ventilatie, TV kabel, en zonnepanelen
Energie
- Energietag
- A
- Energietag-Register
- 28-10-2025
- Isolation
- Dachisolierung, Doppelfenster, Wandisolierung, Fußbodenisolierung und voll isoliert
- Heizung
- Brennkessel
- Warmes Wasser
- Brennkessel
- Kessel
- Remeha (gas gestookt combiketel uit 2022, eigendom)
Außenraum
- Lage
- Aan park, in bosrijke omgeving, in woonwijk en vrij uitzicht
- Garten
- Hintergarten und Vorgarten
- Abmessungen des Hintergartens
- 50 m² (11,00 meter diep en 5,50 meter breed)
- Lage des Gartens
- Gelegen op het zuiden bereikbaar via achterom
Bergspace
- Schleifwerkstatt / Lager
- Angebautes steinernes Speichergebäude
Parkplatz
- Parkplatzart
- Offen parken
Energieverbrauch ein Roden
Energietag der Wohnung
Energielabel A
Energietagmenteil: 28-10-2025
Jahres-Stromverbrauch
(Durchschnitt Durchhaus in Roden)
Gaskonsum pro Jahr
(Durchschnitt Durchhaus in Roden)
* Zahlen stammen vom CBS und sollen als Indikatoren dienen und können für diese Wohnung unterschiedlich sein
Hypothekenbelastungen
Eigene Einlage:
Ersparnisse / Überwert
Zins:
Niedrigste 10-Jahres-Zinssatz
Niedrigste 10-Jahres-Zinssatz
2,75% - Centraal Beheer Groen... - NHG
3,04% - Argenta Groen Hypothee... - 80%
Niedrigste 20-jährige Zinssatz
3,18% - Argenta Groen Hypothee... - NHG
3,39% - Argenta Groen Hypothee... - 80%
Niedrigste 30-jährige Zinssatz
3,35% - Argenta Groen Hypothee... - NHG
3,56% - Argenta Groen Hypothee... - 80%
Hypothek:
Bruttomonatslasten: € 0 p/m
Nettomonatskosten: € 0 p/m
Wie berechnen wir dies?
Der Zinssatz basiert auf dem niedrigsten 10-jährigen Festzins für einen einzelnen Hypothekenteil. Der angegebene Zinssatz (2.75% met NHG) wurde am 03-11-2025 überprüft. Diese Berechnung basiert auf einer Annuitätenhypothek, die vollständig zurückgezahlt wird, wobei die monatlichen Zahlungen während der gesamten Laufzeit gleich bleiben. Der tatsächliche Zinssatz und die monatlichen Nettokosten können je nach Ihrer persönlichen Situation und dem Hypothekengeber variieren. Wenden Sie sich für eine genaue Berechnung und Beratung an einen Finanzberater. Aus dieser Berechnung können keine Rechte abgeleitet werden; sie dient lediglich als Orientierung.
Dokumentation
Katasterkarte
Lebensumgebung
Planansichten PDF
Wertbescheinigung
Krankenkassenbeleg
Broschüre
Virtuelle Tour
Besuchen Sie unsere Website
Besichtigung
Boden verlegen
Wertschätzung
Suchanfrage
Alles herunterladen
Sonnengrenzen betrachten
Bewohner von Roden
Zahlen für Postleitzahl-Region 9302
- Gesamtbevölkerungszahl
- 3400 Bewohner
- Männer
- 49%
- Frauen
- 51%
Bewohner von Roden
Zahlen für Postleitzahl-Region 9302
- bis 15 Jahre
- 19%
- 15 bis 25 Jahre
- 12%
- 25 bis 35 Jahre
- 21%
- 45 bis 65 Jahre
- 33%
- 65 und älter
- 14%
Haushalte von Roden
Zahlen für Postleitzahl-Region 9302
- Einpersonig ohne Kinder
- 23%
- Erwachsene ohne Kinder
- 33%
- Haushalte ohne Kinder
- 56%
Haushalte von Roden
Zahlen für Postleitzahl-Region 9302
- Haushalte mit einem Kind
- 8%
- Haushalte mit mehreren Kindern
- 36%
- Haushalte mit Kindern
- 44%
Wohnungen in Roden
Zahlen für Postleitzahl-Region 9302
- Wohnungen vor 1945
- 1%
- Wohnungen zwischen 1945 und 1965
- 1%
- Wohnungen zwischen 1965 und 1975
- 1%
- Wohnungen zwischen 1975 und 1985
- 1%
- Wohnungen zwischen 1985 und 1995
- 65%
Wohnungen in Roden
Zahlen für Postleitzahl-Region 9302
- Wohnungen zwischen 1995 und 2005
- 24%
- Wohnungen zwischen 2005 und 2015
- 7%
- Wohnungen nach 2015
- 4%
- Mietwohnungen
- 20%
- Eigentumswohnungen
- 80%
Sonstige Einzahlungen Roden
Zahlen für Postleitzahl-Region 9302
- Durchschnittliche WOZ-Wert
- € 278.000,-
- Personen unter 65 Jahren mit Hinterbliebenengeld
- Niet beschikbaar
Sonstige Einzahlungen Roden
Zahlen für Postleitzahl-Region 9302
- Adressen pro Quadratkilometer
- 920
- Urbanität (Skala von 1 bis 5)
- 40%
Willkommen bei der Immobilienagentur Peter
Ihre zuverlässige Partner im Immobilienbereich in Roden und Umgebung. Seit 1986 haben wir unseren Standort an der Brink 37 in Roden, wo unsere Erfahrung und Kenntnisse des lokalen Marktes zusammenkommen, um Sie optimal bei Kauf, Verkauf oder Vermietung von Immobilien zu beraten.
Unter der Leitung von Peter Brandsma, der im Jahr 1995 das Zepter von seinem Vater Cor übernahm, haben wir eine reiche Geschichte aufgebaut im Immobilienhandel. Mit mehr als 35 Jahren Erfahrung ist Peter nicht nur ein fachkundiger Makler, sondern auch ein engagierter Berater, der sich voll und ganz für seine Kunden einsetzt. Er ist bekannt für seinen nüchternen Ansatz und seine Fähigkeit, jede Immobilie effektiv auf den Markt zu bringen für die beste mögliche Preis.
Bei Peters Immobilienagentur glauben wir daran, dass maßgeschneiderte Lösungen essentiell sind. Jedes Haus ist einzigartig und erfordert eine eigene Strategie. Deshalb beginnt unser Prozess immer mit einem kostenfreien Kennenlerngespräch, um Ihre Wünsche zu erfassen. Unsere Gruppe von erfahrenen Profis wie Germa Bijholt und Gerben de Vries steht Ihnen sowohl bei der Verkauf als auch bei der Erwerb Ihres Hauses zur Verfügung.
Unsere Kunden schätzen unsere Arbeit sehr, wie sich aus einer durchschnittlichen Bewertung von 9,2 von 10 auf Funda und Google ergibt. Wir sind stolz darauf, dass Klienten uns als kompetent, freundlich und immer erreichbar beschreiben. Möchten Sie mit uns an Ihren Wohnwünschen arbeiten? Kontaktieren Sie uns gerne für weitere Informationen oder melden Sie sich an, um über unser neuestes Angebot informiert zu bleiben. Peters Immobilien - Ihr Immobiliarer in Roden!
Neueste Bewertungen
-
Nijenrode 51
Sehr gute Kontaktaufnahme mit dem Immobilienmakler und seiner Mannschaft. Kurze Kommunikation und angenehme Gespräche. Wenn Sie Ihr Haus sch...
-
de Hulst 58
Kompetent. Vertreten meine Interessen. Kennt den lokalen Markt. Schnelle und klare Kommunikation. Guter Vermittler.
-
Riemsnijder 35
Angenehmes und nettes Kontakt. Klarer Erklärungen, wenn du Fragen hattest. Gut erreichbar per Telefon. Im Ganzen eine 10?